406 Meadowood Boulevard, FERN PARK, FL 32730
Property Photos

Would you like to sell your home before you purchase this one?
Priced at Only: $349,900
For more Information Call:
Address: 406 Meadowood Boulevard, FERN PARK, FL 32730
Property Location and Similar Properties
- MLS#: O6351080 ( Residential )
- Street Address: 406 Meadowood Boulevard
- Viewed: 10
- Price: $349,900
- Price sqft: $145
- Waterfront: No
- Year Built: 1982
- Bldg sqft: 2412
- Bedrooms: 3
- Total Baths: 3
- Full Baths: 2
- 1/2 Baths: 1
- Days On Market: 9
- Additional Information
- Geolocation: 28.6471 / -81.3453
- County: SEMINOLE
- City: FERN PARK
- Zipcode: 32730
- Subdivision: Lake Of The Woods Sec 11 Twnhs
- Elementary School: English Estates Elementary
- Middle School: South Seminole Middle
- High School: Lake Howell High
- Provided by: ACME REAL ESTATE FLORIDA LLC
- DMCA Notice
-
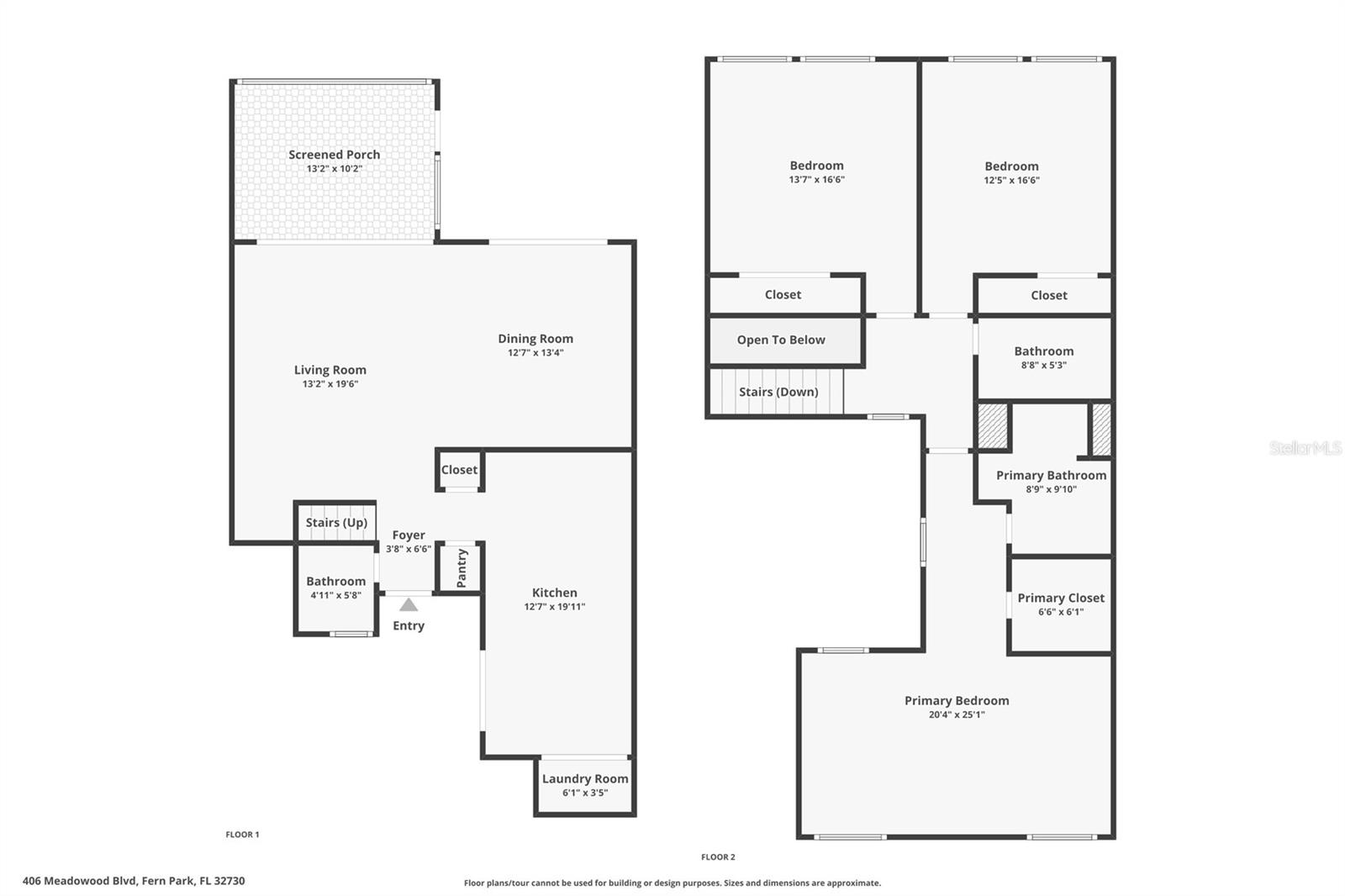
DescriptionNestled in the back of the charming community of lake of the woods is the townhome youve been waiting for! Located on a quiet dead end street, this two story townhome is well insulated with block construction all the way up! Featuring a two car garage, full driveway, private mail slot (no community mailbox), private metal gate, and paved walkway leading to the front door. The first floor has a roomy living and dining room combo, a half bathroom, storage closet under the stairs, and laundry closet with washer and dryer included. The kitchen is complete with a storage closet, pantry cabinet, eating nook, newer refrigerator (2020), and stainless steel dishwasher, range (2019), and microwave (2025). The decorative wallpaper throughout the home offers a unique flare with pops of color! The downstairs is basking in natural light from the large sliding glass doors/windows, overlooking the stunning view of the backyard. Relax in the shade in the screened in porch, overlooking the greenspace, with shady mature oak and pine trees. Upstairs is complete with 3 bedrooms and 2 full bathrooms. The room sizes and storage space in this home are unmatched! The sizeable primary suite showcases a walk in closet, dual sinks, and tiled walk in shower with built in inserts. The living room, staircase, and entire second floor features beautiful new water resistant lvp flooring (2024). The upstairs boasts newly renovated full bathrooms with stunning, modern finishes. Additional features include: new double pane, low e, energy efficient windows (2024); new easily adjustable blackout blinds in all bedrooms (2024); and ecobee smart thermostat. The hoa replaced the roof in 2024, and hoa is also responsible for the exterior paint/siding/stucco, landscaping, and roads. In addition to such a lovely home is an incredible community with so much to offer residents! Recreational facilities overlook the lake and include a full size adult pool, kiddie pool, basketball court, tennis courts, playground, and fishing dock. The clubhouse features an exercise room, sauna, game room with ping pong and pool tables, and library with books, videos, and puzzles. Residents can attend social events, the community flea market, and monthly activities like bingo and pot luck. Conveniently located with easy access to highways, restaurants, shopping, and so much more! If youre in the market for a spacious new home in a quiet community with so much to do, this is the home for you! Call to schedule a private showing today! ***virtual tour & floorplan available***
Payment Calculator
- Principal & Interest -
- Property Tax $
- Home Insurance $
- HOA Fees $
- Monthly -
For a Fast & FREE Mortgage Pre-Approval
Apply Now

Features
Building and Construction
- Covered Spaces: 0.00
- Exterior Features: Lighting, Private Mailbox, Rain Gutters, Sliding Doors
- Flooring: Luxury Vinyl, Tile
- Living Area: 1872.00
- Roof: Shingle
Land Information
- Lot Features: City Limits, Street Dead-End, Paved
School Information
- High School: Lake Howell High
- Middle School: South Seminole Middle
- School Elementary: English Estates Elementary
Garage and Parking
- Garage Spaces: 2.00
- Open Parking Spaces: 0.00
- Parking Features: Driveway, Garage Door Opener
Eco-Communities
- Water Source: Public
Utilities
- Carport Spaces: 0.00
- Cooling: Central Air
- Heating: Central, Electric
- Pets Allowed: Yes
- Sewer: Public Sewer
- Utilities: BB/HS Internet Available, Cable Available, Electricity Connected, Public, Sewer Connected, Water Connected
Amenities
- Association Amenities: Basketball Court, Clubhouse, Fitness Center, Playground, Pool, Recreation Facilities, Sauna, Tennis Court(s)
Finance and Tax Information
- Home Owners Association Fee Includes: Pool, Escrow Reserves Fund, Maintenance Structure, Maintenance Grounds, Private Road, Recreational Facilities
- Home Owners Association Fee: 262.40
- Insurance Expense: 0.00
- Net Operating Income: 0.00
- Other Expense: 0.00
- Tax Year: 2024
Other Features
- Appliances: Dishwasher, Disposal, Dryer, Electric Water Heater, Exhaust Fan, Microwave, Range, Refrigerator, Washer
- Association Name: Kristina Andersen
- Association Phone: 407-834-6828
- Country: US
- Interior Features: Ceiling Fans(s), Eat-in Kitchen, Living Room/Dining Room Combo, PrimaryBedroom Upstairs, Solid Surface Counters, Split Bedroom, Thermostat, Walk-In Closet(s), Window Treatments
- Legal Description: LOT 405 LAKE OF THE WOODS TOWNHOUSE SEC 11 PB 24 PGS 1 & 2
- Levels: Two
- Area Major: 32730 - Casselberry/Fern Park
- Occupant Type: Vacant
- Parcel Number: 19-21-30-5FG-0000-4050
- View: Trees/Woods
- Views: 10
- Zoning Code: R-3A
Similar Properties